红墅湾90栋102设计说明
	 
	工程地址:长沙市雨花区曲塘路
	设  计  师:黄老师,蒋老师
	设计时间:2021年5月
	户        型:上下5层联排别墅
	建筑面积:663平米
	主要用材:雨虹防水、福湘木业、诗珑漆、朗途陶瓷、安华卫浴、全房原木定制
	表现手法:把感性与理性灵巧地结合统一,传统与现代结合
	性格特点:追求自然
	设计理念:追求个性、突出自然
	功能分区:负一楼(活动室,保姆房,酒窖,公用卫生间,视听间)
	                    一楼(客厅,玄关,餐厅,厨房,车库,花园)
	                    二楼(女孩房套房,衣帽间,内卫)
	                    三楼(主卧、衣帽间、主卫、男孩房套房)
	                    阁楼(晾晒,储物间,活动室)
	设计说明:
	把空间不是传统地看成固定不动的,利用墙、地面隔断做穿插,让空间动起来。
	为此设计师突破原有思想的束缚,追求一种穿透、破碎而自然的感觉,而且在材质上形成强烈对比,用砖石、玻璃、实木作为硬与软、自然与人为的对比。
	5个套房设计,满足家庭每位成员的使用功能;负一层和一楼活动区域及视听间,满足家庭聚会各项功能要求。

	别墅楼梯间电梯设计效果图

	负一层平面布置图

	负一层接待室

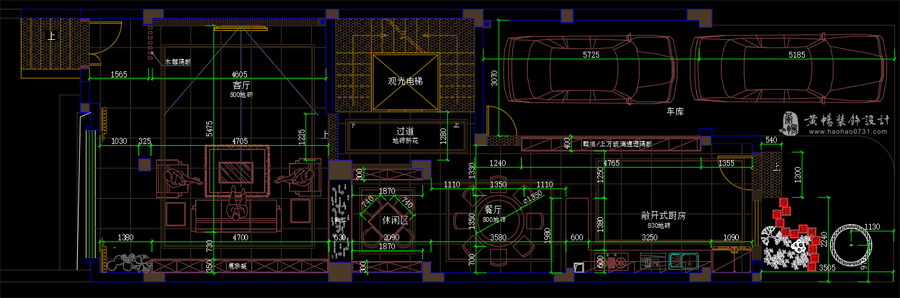
	一楼平面布置图

	一楼厨房和餐厅

	一楼客厅效果图

	二楼平面布置图

	二楼女儿房套房

	二楼女儿房套房2

	三楼平面布置图

	三楼主卧室套房

	三楼主卫效果图

	三楼男孩房套房

	四楼平面布置图