餐饮/茶楼
永州夜上海餐厅
2018-03-13   黄畅装饰设计

夜上海餐厅设计说明

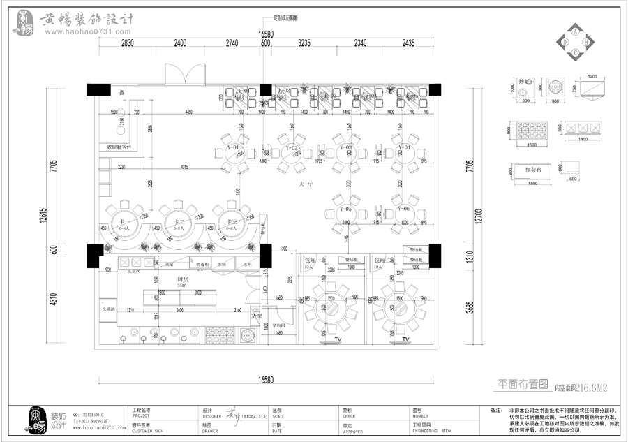
工程地址:永州市零陵区北欧春天广场三楼,350号。夜上海餐厅
订餐热线:13787631305孙
设计团队:蒋老师
设计时间:2018年8月
户       型:商场3F
建筑面积:310平米
主要用材:铝方通吊顶、水泥砖、大理石墙面、茶镜、不锈钢、真石漆、硬包、欧迪克门窗、福湘木业、华润漆、简一陶瓷、澳斯曼卫浴
表现手法:把感性与理性灵巧地结合统一,传统与现代结合
性格特点:追求自然
设计理念:追求个性、突出自然
功能分区:卡座区、圆桌区、包厢

饭店包厢装修设计效果图
饭店包厢装修设计效果图
永州主题餐厅装修设计
永州主题餐厅装修设计
长沙饭店,餐厅设计师
长沙饭店,餐厅设计师
永州个性饭店效果图
永州个性饭店效果图
商场内饭店装修设计
商场内饭店装修设计
黄畅装饰设计

 

相关案例

Related cases
咨询热线

18108413131

邮 箱:2313160010@qq.com
QQ咨询:2313160010
官网:www.haohao0731.com
地址:湖南长沙岳麓区合能洋湖公馆二期2栋2002

微信公众号

微信咨询

手机网站