海南万宁酒店设计说明
主要用材:石膏板、石材、木纹瓷砖、水泥砖、铝合金、铝方通、墙布、生态板
表现手法:把现代和工业风格完美结合统一
性格特点:前卫、追求自然
设计理念:追求个性、突出自然
设计说明:
本酒店位于海南省万宁市,独栋建筑,主体结构为上下8层;一楼定位茶楼和简餐,二~七楼为客房,八楼为办公和园林以及设备间。
其中客厅配置:单人间(24间);双人间(12间);套房(6间);其中含8间(麻将间)
一楼茶座及酒店接待效果图
酒店单人间/套房效果图
酒店客房双人间效果图
客房过道效果图
酒店过道效果图
一楼平面布置图
二~四楼平面布置图
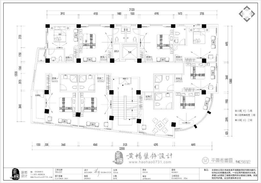
五~七楼平面布置图




COPYRIGHT © 黄畅装饰设计 2024. ALL RIGHTS RESERVED 技术支持湘ICP备17003293号-1

